Toorak
8/40 Grange Road
- 3
- 2
- 2
Deceptively Spacious Rear Townhouse Featuring Private Lift & Secure Lifestyle
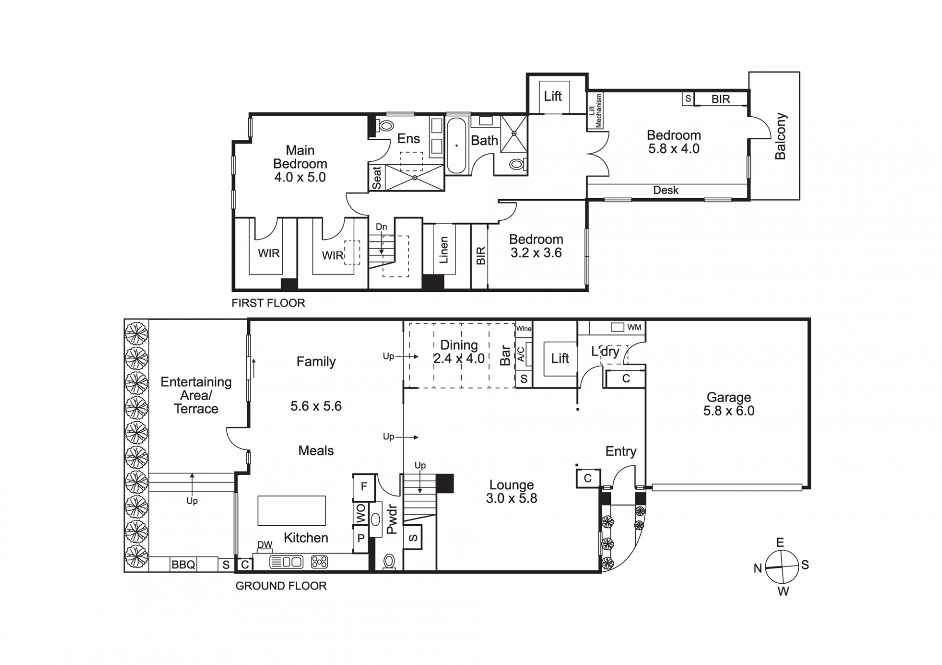
Deceptively spacious, this luxury townhouse delivers grand house-like proportions in a low maintenance setting. The elegant formal living and dining areas set the scene, elevated by a atrium ceiling and bar area with wine fridge. French doors welcome sunlight to the adjoining kitchen, meals area and family space. The superbly appointed chef's kitchen boasts quality European Miele appliances.
Relax under the shade of mature trees and lush foliage on the spacious outdoor entertaining deck. Supremely quiet, private and north facing, hosting is easy with a premium in-built barbecue. Upstairs, the master bedroom invites serene garden views and features twin walk-in wardrobes and a luxe ensuite with twin vanity and double rain shower. Two further bedrooms are serviced by a main bathroom with generous freestanding bath. One bedroom is fitted with a full wall of office joinery, providing a generous, flexible space for work or study.
Only moments to vibrant Toorak Village and the Yarra River trails, this boutique home offers the prestige of a Grange Road address with the tranquility of a rear townhome position. Set well back from the street, access is via large security gates and a direct path to a double garage with a second entry to the foyer. Establish a refined inner-city lifestyle close to M1 freeway access.
High quality features abound, including Private Lift, CCTV security with alarm, cable internet (HFC) available, intercom, reverse cycle heating/cooling and downstairs powder room. Abundant storage throughout includes a walk-in linen cupboard, garage shelving and a spacious laundry with Miele washer and dryer. Recent upgrades include internet cabling, cabinetry, repainted interior, and painting and resurfacing of the garage floor.
Relax under the shade of mature trees and lush foliage on the spacious outdoor entertaining deck. Supremely quiet, private and north facing, hosting is easy with a premium in-built barbecue. Upstairs, the master bedroom invites serene garden views and features twin walk-in wardrobes and a luxe ensuite with twin vanity and double rain shower. Two further bedrooms are serviced by a main bathroom with generous freestanding bath. One bedroom is fitted with a full wall of office joinery, providing a generous, flexible space for work or study.
Only moments to vibrant Toorak Village and the Yarra River trails, this boutique home offers the prestige of a Grange Road address with the tranquility of a rear townhome position. Set well back from the street, access is via large security gates and a direct path to a double garage with a second entry to the foyer. Establish a refined inner-city lifestyle close to M1 freeway access.
High quality features abound, including Private Lift, CCTV security with alarm, cable internet (HFC) available, intercom, reverse cycle heating/cooling and downstairs powder room. Abundant storage throughout includes a walk-in linen cupboard, garage shelving and a spacious laundry with Miele washer and dryer. Recent upgrades include internet cabling, cabinetry, repainted interior, and painting and resurfacing of the garage floor.
